Notícias
Parque Municipal de Exposições recebe melhorias na sua infraestrutura
- Publicado em 06/11/2023 às 19:04
- Imprimir
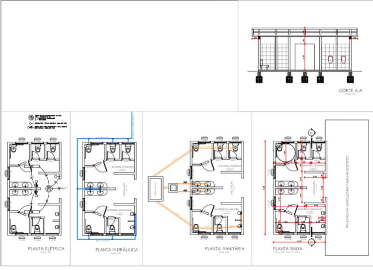
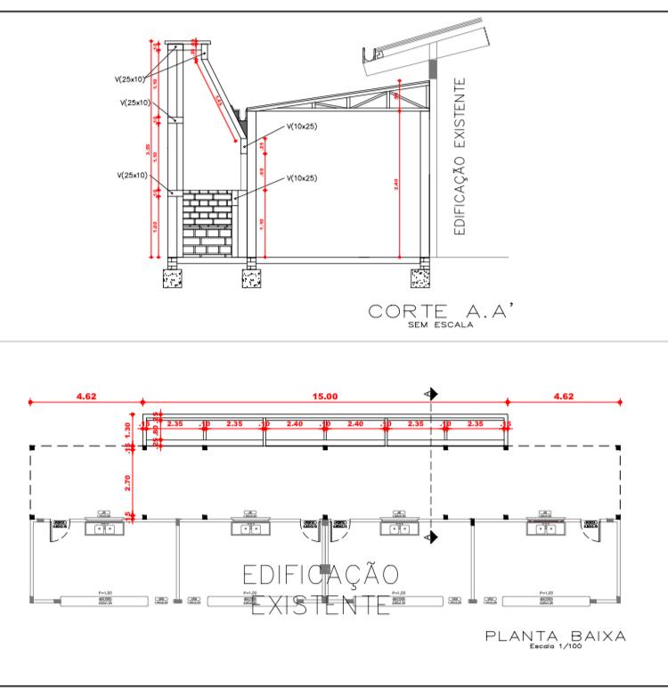
O Governo Municipal através da Secretaria de Planejamento Econômico, segue realizando melhorias na infraestrutura do Parque Municipal de Exposições Olmiro Callai. Conforme o secretário Antonio Carlos Dalla Costa que esteve conferindo in loco o andamento das obras, tais investimentos fazem-se necessários devido o grande número de eventos sediados no parque.
Pensando em otimizar o aproveitamento, comodidade e a praticidade do Parque de Exposições, está em fase de execução a construção de uma churrasqueira, aos fundos do Pavilhão da Praça de Alimentação e de novos sanitários, junto ao Pavilhão da Agricultura Familiar. As referidas obras além de atenderem a uma antiga solicitação dos usuários, especialmente expositores e entidades que promovem eventos no local, vem de encontro com o propósito da gestão municipal, de seguir ampliando as melhorias nas infraestruturas públicas, objetivando melhor acolher a comunidade em geral. A obra está sendo executada com a parceria de servidores da Secretaria Municipal de Obras, Infraestrutura e Serviços Urbanos e da Secretaria de Promoção Humana.